Venta de solar en Tona Barcelona

Ref: 014721

Estado: Buen estado

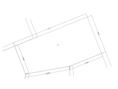
Superfície: 726 m2

Habitaciones: 0

Baños: 0

Características

No se ha especificado ninguna característica

174.000 €

(726 m2 - 239,67 €/m2)

Descripción

Solar en el centro, zona residencial de la población, llano, soleado, parcela de 726,38 m2. Ideal para construir torre de 4 vientos. ¡Mejor ubicación imposible! ¡Infórmate! Solar en el centro, zona residencial de la población, llano, soleado, parcela de 726,38 m2. Ideal para construir torre de 4 vientos. ¡Mejor ubicación imposible! ¡Infórmate!

Certificado energético

Consumo:
En proceso
Emisiones:
En proceso
Inmueble gestionado por:
NOVA IMMOBILIARIA 2007